 Acerca de la propiedad
                 
                Acerca de la propiedad
              
              
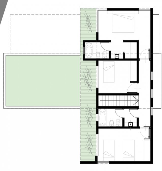
                Proyecto de casa llave en mano 150 m2 en Lagos de Canning.
Proyecto, dirección, construcción.
Casa de 150 m2, diseño funcional y moderno, cocina, comedor, living, lavadero, tres habitaciones, una de ellas en suite, baño completo y toilette.
Pileta opcional!
Los materiales a utilizar son aberturas linea modena con DVH, pisos de porcelanato, pintura interior, revestimiento exterior, muebles de cocina, artefactos de baño.
Valor: USD 112.500, entrega en 10 meses desde el comienzo de la obra.
Consulte: formas de pago.
La venta de este inmueble está sujeta a la tramitación del Código de Transferencia de Inmuebles (COTI), de conformidad con la normativa vigente (Res. AFIP 2371/08, 2439/08 y ccs.) por parte del propietario.